Mataró

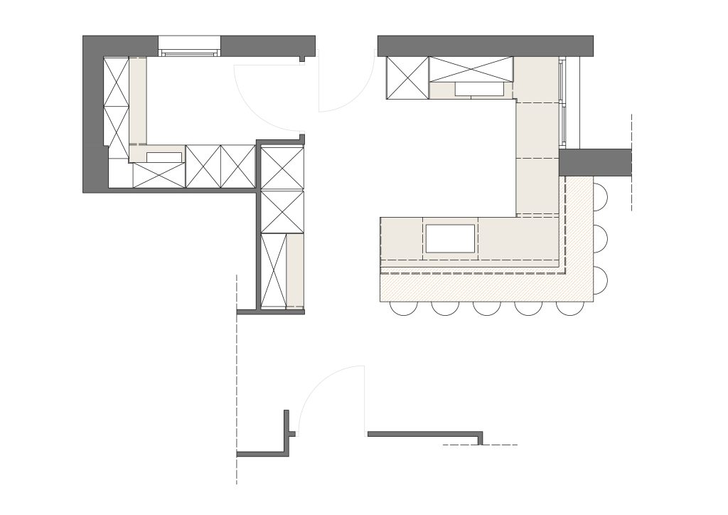
Esta cocina se ha diseñado bajo un concepto abierto, integrando el espacio de trabajo con la zona de día para potenciar la amplitud, la luminosidad natural y la convivencia familiar. Distribución en L con isla central: la zona de cocción y preparación se organiza de forma ergonómica, garantizando recorridos cortos y funcionales. La isla, además de incorporar fregadero y zona de apoyo, ofrece una amplia superficie de trabajo y barra para hasta seis comensales. Mobiliario a medida: frentes en acabado laminado mate en tonos neutros combinados con módulos superiores de madera natural, creando un cálido y atemporal contraste. Encimeras y revestimientos: superficie continua realizado en porcelánico de altas prestaciones, resistente al calor, la humedad y los impactos, con acabado efecto mármol que aporta elegancia y luminosidad. Electrodomésticos integrados: columna con horno y microondas en disposición vertical, placa de inducción en la zona de trabajo principal y campana oculta para mantener la limpieza visual. El resultado es una cocina que combina diseño contemporáneo, practicidad y materiales de alta calidad, siendo un espacio pensado tanto para el día a día como para disfrutar en compañía.